Trilocale in vendita

Caponago, Via Don Natale Villa
€ 189.000
3 locali 3 locali
100 Mq 100 Mq
1 bagno 1 bagno

Trilocale in vendita

Caponago, Via Don Natale Villa

Descrizione annuncio

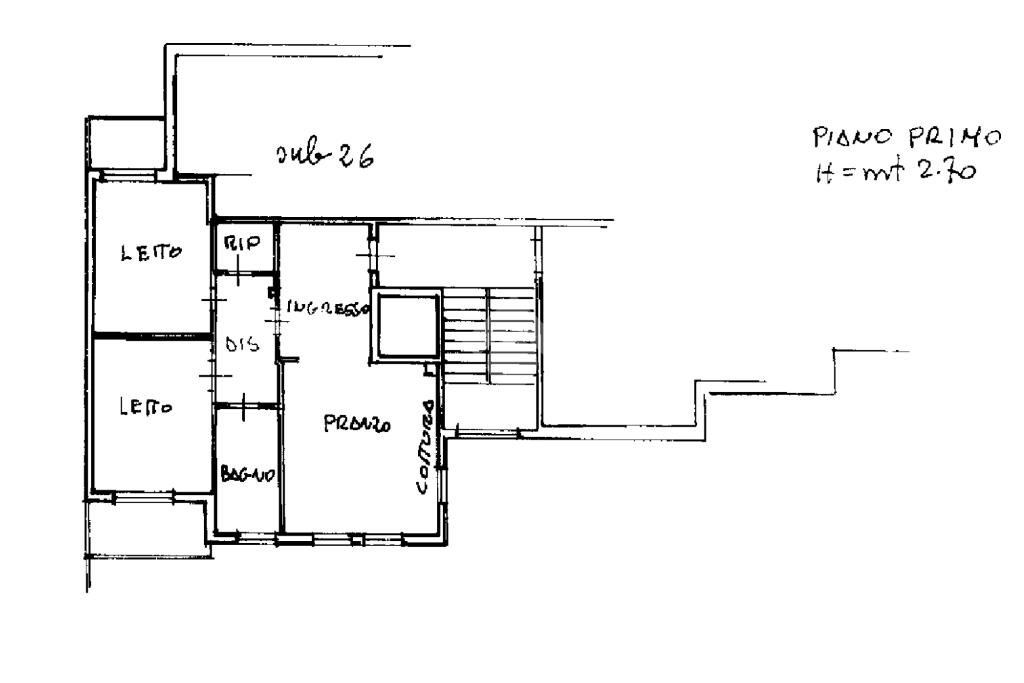
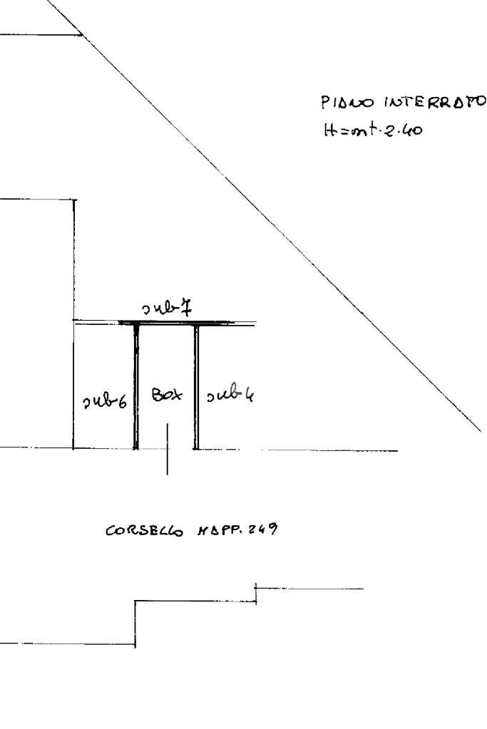
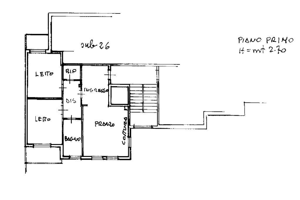
Nel cuore di Caponago, proponiamo un appartamento di 100 mq, ideale per chi cerca spazi ben distribuiti e funzionali. Situato in un contesto residenziale tranquillo, l'immobile si trova al piano primo di un edificio costruito nel 1990. L'appartamento si compone di tre locali: un luminoso soggiorno che si apre su una cucina a vista, due camere da letto ampie e luminose e un bagno finestrato ed uno sgabuzzino molto utile. Gli ambienti sono caratterizzati da una disposizione razionale che garantisce comfort e praticità. La proprietà include anche due balconi, perfetto per momenti di relax all'aperto. Completa l'offerta una cantina al piano seminterrato ed il box singolo compreso nel prezzo. La posizione strategica consente di raggiungere facilmente i principali servizi del comune, rendendo questa soluzione abitativa adatta a famiglie e professionisti. Un'opportunità da non perdere per chi desidera vivere in un contesto sereno senza rinunciare alla comodità.

Mostra tutto

Nelle vicinanze

Trasporto pubblico Trasporto pubblico
Trasporto pubblico
170 m
Leonardo da Vinci - Emanuele
Leonardo da Vinci - Emanuele
400 m
Scuole Scuole
Scuole elementari e medie "Alcide De Gasperi"
160 m
Scuole Elementari Pessano
1,9 Km
Scuola Secondaria di I grado "Daniela Mauro"
2,0 Km
Scuola Ementare
2,4 Km
Scuole
2,5 Km
Farmacia Farmacia
Farmacia Piva
320 m
Farmacia Comunale
1,5 Km
Farmacia
2,4 Km
Farmacia Ghiozzi
3,0 Km
Supermercati Supermercati
Supermercati
1,2 Km
Conad
1,9 Km
Centro Servizi La Fenice
2,0 Km
UNES
2,0 Km
Supermercati UNES
2,3 Km
Negozi Negozi
L'angolo dei sapori
300 m
Carrefour Express
350 m
Ravanelli Abbigliamento
360 m
Panificio Colnago
370 m
Ok Sigma dei Fratelli Brambilla
480 m
Bar Bar
Bar
370 m
Bar Roma
380 m
Capunac Cafe'
410 m
Copacabana Cafè
660 m
Caffè Le Piazze
2,0 Km
Ristoranti Ristoranti
Pizzeria Capriccio
330 m
Acqua e Farina
1,5 Km
Autogrill
1,8 Km
Ristoranti
1,9 Km
Pizzeria della Martesana
2,0 Km
Mostra tutto

Caratteristiche

Rif.:
61081110
Piano:
1 di 4 con ascensore (Piano basso)
Box:
1
Posti auto:
1
Balconi:
2
Camere da letto:
2
Mostra tutto
Prezzo Prezzo
€ 189.000
Rata mutuo Rata mutuo
€ 877 / mese
Spese annue Spese annue
€ 2.000
Proponi il tuo prezzoProponi il tuo prezzo

Classe Energetica

F
F
F
F
F
F
F
F
F
Anno di costruzione:
1990
Riscaldamento:
Autonomo
Tipo impianto:
A radiatori
Tipo alimentazione:
Metano

Ti interessa visionare l'immobile?

Fissa un appuntamento  Fissa un appuntamento

Richiedi informazioni

Clicca su Leggi per aprire l'informativa
* Questi campi sono obbligatori

Calcola il tuo mutuo

Semplice e senza impegno
Anticipo

( % )
Mutuo

( % )

pochi semplici passi

inserisci i tuoi dati
Questionario completato
Grazie per aver richiesto un appuntamento senza impegno con un nostro Consulente del Credito e Assicurativo.

Hai inserito correttamente tutti i dati necessari e a breve riceverai una e-mail con un link da convalidare per inviare i tuoi dati.
Affiliato
Immobiliare Quadrifoglio Srl
Via XXV Aprile, 7 20873 Cavenago Di Brianza (MB)

Il nostro staff


  • Alessandro La Porta
    Affiliato

  • Nicole Parmesani
    Coordinatrice

  • Gioele Timolati
    Collaboratore

  • Kevin Maffolini
    Affiliato
Via XXV Aprile, 7 20873 Cavenago Di Brianza (MB)
Zona: Cavenago di Brianza
Mostra su mappa
Affiliato
Immobiliare Quadrifoglio Srl
Via XXV Aprile, 7 20873 Cavenago Di Brianza (MB)

2026 Tecnocasa Franchising S.p.A. - P. IVA 08365160152 - Via Monte Bianco 60/A 20089 Rozzano (MI). Ogni agenzia ha un proprio titolare ed è autonoma. Privacy policy | Policy utilizzo | Cookie policy