Trilocale in vendita

Cavenago Di Brianza, Via Roma
€ 195.000
3 locali 3 locali
100 Mq 100 Mq
2 bagni 2 bagni

Trilocale in vendita

Cavenago Di Brianza, Via Roma

Descrizione annuncio

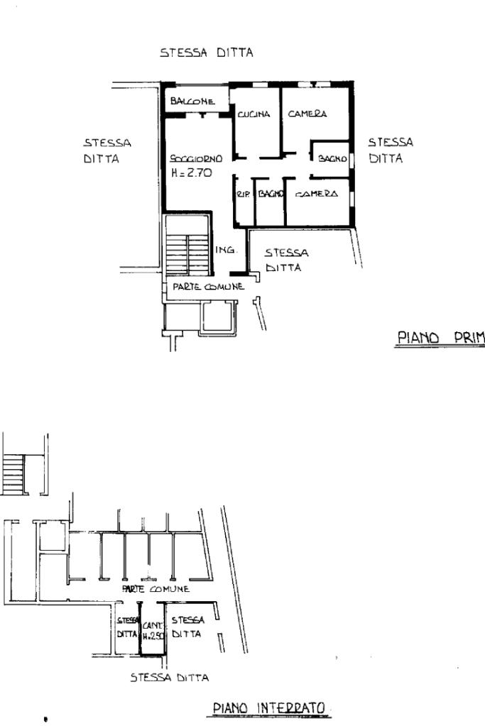
Nel cuore di Cavenago di Brianza, proponiamo un appartamento in ottime condizioni di circa 100 mq, ideale per chi cerca una soluzione abitativa funzionale e ben distribuita. Situato al primo piano di un stabile edificato tra la metà e la fine degli anni '90 dotato anche di ascensore, l'immobile offre spazi accoglienti e ben organizzati. L'appartamento si compone di tre locali, perfetti per ospitare una famiglia o per chi desidera avere uno studio o una stanza per gli ospiti. La disposizione interna è studiata per garantire comfort e praticità, con una zona giorno luminosa e una cucina separata. Le camere da letto sono spaziose e ben illuminate. Infine ci sono due bagni che consentono una pratica comodità di gestione, di cui uno finestrato con doccia ed il secondo cieco con vasca.

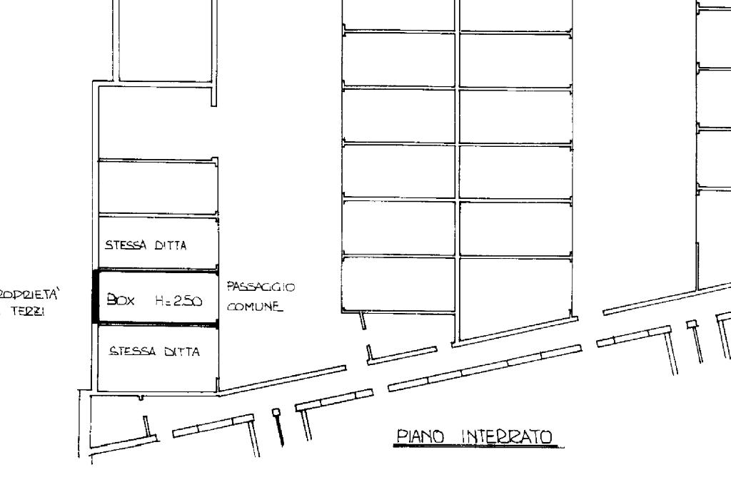
La soluzione ha la possibilità di acquisto del box singolo al prezzo di 15.000€

La posizione dell'immobile consente di raggiungere facilmente i principali servizi del comune, rendendolo una scelta conveniente per chi desidera vivere in una zona tranquilla ma ben collegata.

Mostra tutto

Nelle vicinanze

Trasporto pubblico Trasporto pubblico
Cavenago - (Casello Autost.)
Cavenago - (Casello Autost.)
470 m
Trasporto pubblico
1,3 Km
Scuole Scuole
Scuola Primaria Ada Negri
300 m
Scuola Secondaria di Primo Grado Alessandro Manzoni
390 m
Scuola Primaria Antonio Locatelli
1,4 Km
Scuola Secondaria di Primo Grado Cesare Beccaria
1,4 Km
Scuola Primaria di Ornago
1,9 Km
Farmacia Farmacia
Farmacia Caccia
2,0 Km
Supermercati Supermercati
Il Gigante Cavenago
1,0 Km
Punto Simply
1,3 Km
LD Market
1,6 Km
Negozi Negozi
Prestinè
1,5 Km
Il Sartino
1,7 Km
Circolo Don Carlo Villa - Alimentari
1,8 Km
Bar Bar
Bar del Centro
1,2 Km
Central Bar
1,3 Km
Bar
1,4 Km
Antica Bottega Del Santuario
2,2 Km
Ristoranti Ristoranti
El Piramidi
110 m
La Giara
910 m
La Rustichella
1,5 Km
Agriturismo La Malaspina
1,7 Km
Autogrill
2,1 Km
Mostra tutto

Caratteristiche

Rif.:
61124474
Piano:
1 di 3 con ascensore (Piano basso)
Box:
1
Posti auto:
1
Terrazzi:
1
Camere da letto:
2
Mostra tutto
Prezzo Prezzo
€ 195.000
Prezzo box Prezzo box
€ 15.000
Rata mutuo Rata mutuo
€ 905 / mese
Spese annue Spese annue
€ 1.200
Proponi il tuo prezzoProponi il tuo prezzo

Classe Energetica

E
E
E
E
E
E
E
E
E
EP invernale del fabbricato:
EP estiva del fabbricato:
Anno di costruzione:
1995
Riscaldamento:
Autonomo
Tipo impianto:
A radiatori
Tipo alimentazione:
Metano

Ti interessa visionare l'immobile?

Fissa un appuntamento  Fissa un appuntamento

Richiedi informazioni

Clicca su Leggi per aprire l'informativa
* Questi campi sono obbligatori

Calcola il tuo mutuo

Semplice e senza impegno
Anticipo

( % )
Mutuo

( % )

pochi semplici passi

inserisci i tuoi dati
Questionario completato
Grazie per aver richiesto un appuntamento senza impegno con un nostro Consulente del Credito e Assicurativo.

Hai inserito correttamente tutti i dati necessari e a breve riceverai una e-mail con un link da convalidare per inviare i tuoi dati.
Affiliato
Immobiliare Quadrifoglio Srl
Via XXV Aprile, 7 20873 Cavenago Di Brianza (MB)

Il nostro staff


  • Alessandro La Porta
    Affiliato

  • Nicole Parmesani
    Coordinatrice

  • Gioele Timolati
    Collaboratore

  • Kevin Maffolini
    Affiliato
Via XXV Aprile, 7 20873 Cavenago Di Brianza (MB)
Zona: Cavenago di Brianza
Mostra su mappa
Affiliato
Immobiliare Quadrifoglio Srl
Via XXV Aprile, 7 20873 Cavenago Di Brianza (MB)

2026 Tecnocasa Franchising S.p.A. - P. IVA 08365160152 - Via Monte Bianco 60/A 20089 Rozzano (MI). Ogni agenzia ha un proprio titolare ed è autonoma. Privacy policy | Policy utilizzo | Cookie policy